
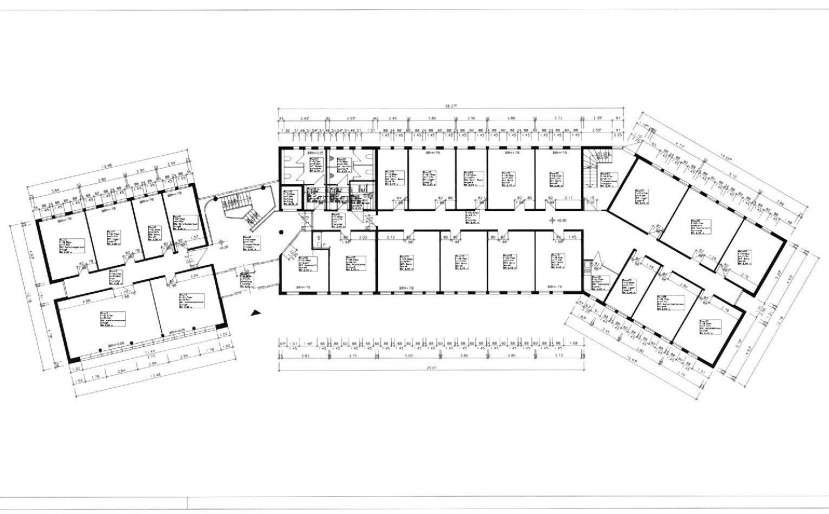
Hier angeboten werden Teilfächen eines Bürozentrums über 4 Etagen mit 25 Einzelbüros je Etage, Pantryküchen, Fahrstuhl und Serverraum!
Dieses moderne Bürozentrum erstreckt sich über vier Etagen und bietet eine Gesamtfläche von ca. 2.314 Quadratmetern. Das Gebäude ist durch einen Fahrstuhl barrierearmerschlossen und umfasst 50 Stellplätze, die den Parkbedarf der Nutzer bequem abdecken. Die EDV-Verkabelung ist bereits installiert, was eine schnelle und einfache Einrichtung Ihrer IT-Infrastruktur ermöglicht.
Das Bürogebäude kann flexibel genutzt werden, da es ab einer Fläche von ca. 600 Quadratmetern etagenweise teilbar ist. In den Bürobereichen sorgt ein antistatischer Teppichboden für ein angenehmes Arbeitsumfeld, während die Flure mit einem eleganten Designbelag ausgestattet sind. Die Küchen und Bäder sind mit pflegeleichten Fliesen versehen.
Jede Etage ist mit einer Küche, sowie getrennten WC´s ausgestattet.
Im Dachgeschoss befinden sich neben Beratungsräumen auch Archivräume, die zusätzlichen Stauraum bieten. Eine großzügige Terrasse lädt zum Verweilen und zur Nutzung im Freien ein. Das Gebäude kombiniert moderne Büroausstattung mit funktionalen und komfortablen Arbeitsbereichen und bietet eine attraktive Arbeitsumgebung im Herzen von Bützow.
Insgesamt ist das Objekt sehr gepflegt und eignet sich hervorragend als Bürozentrum für bspw. Ämter.
Besichtigungen sind kurzfristig möglich!
- 4 Etagen
- Empfangsbereich
- je ca. 25 Einzelbüros pro Etage
- DG: Konferenz- und Archivetage
- ca. 50 Stellplätze
- antistatischer Teppichboden, Designbelag, Fliesen
- Terrasse im DG
- getrennte WC's pro Etage
- Küchen auf jeder Etage
- Serverraum
- Fernwärmestation im EG
- bodentiefe Fenster im EG
- EDV-Verkabelung
Mieterprovision: Der Makler-Vertrag mit unserem Unternehmen entsteht durch schriftliche Vereinbarung oder durch die Inanspruchnahme unserer Maklertätigkeit. Die Vertragsbasis bildet das Objekt-Exposé. Die Mieterprovision ist bei Vertragsabschluss verdient und fällig. Die ImmoFair Rostock GmbH erhält einen unmittelbaren Zahlungsanspruch gegenüber dem Mieter.
Alle Angaben sind ohne Gewähr und beruhen ausschließlich auf Informationen des Auftraggebers bzw. Verkäufers. Wir übernehmen keine Gewähr für deren Vollständigkeit, Richtigkeit und Aktualität. Sollte Ihnen das von uns nachgewiesene Objekt bereits bekannt sein, bitten wir Sie um unverzügliche Mitteilung. Eine Weitergabe des Exposees an Dritte ohne unsere Zustimmung löst ggf. Schadensersatzansprüche aus. Das Angebot ist freibleibend, eine Zwischenvermietung behält sich der Eigentümer vor.
** Die hier eingestellten Flächendefinitionen sind mit größter Sorgfalt recherchiert, erheben jedoch nicht den Anspruch auf Alleingültigkeit und werden lediglich unverbindlich zu Informationszwecken zur Verfügung gestellt. Bitte beachten Sie auch unsere rechtlichen Hinweise.
DSGVO:
Wir verweisen hiermit auf die Speicherung Ihrer Daten, sobald Sie uns eine Kontakt-Anfrage senden. Die Gegebenheiten des Datenschutzes können Sie unter folgendem Link nachlesen. https://www.immofair-rostock.de/datenschutz/
Die Daten werden nicht an Dritte weitergegeben und dienen lediglich der Kontaktaufnahme, um ggf. einen Besichtigungstermin zu vereinbaren.
Sollten Sie die Speicherung nicht wünschen, bitten wir um kurze Mitteilung, um diese zu löschen.
** Die hier eingestellten Flächendefinitionen sind mit größter Sorgfalt recherchiert, erheben jedoch nicht den Anspruch auf Alleingültigkeit und werden lediglich unverbindlich zu Informationszwecken zur Verfügung gestellt. Bitte beachten Sie auch unsere rechtlichen Hinweise.
Karte
Schlossplatz 6 liegt im Herzen von Bützow, direkt am zentralen Schlossplatz, der für seine historische Architektur und lebhafte Atmosphäre bekannt ist. Die Immobilie profitiert von einer hervorragenden Sichtbarkeit und zentralen Lage, umgeben von Geschäften, Restaurants und kulturellen Einrichtungen. Der Platz ist gut erreichbar über die B104 und nur wenige Minuten vom Bahnhof Bützow entfernt, der regelmäßige Verbindungen nach Rostock bietet. Öffentliche Verkehrsmittel sind in unmittelbarer Nähe verfügbar, und es stehen sowohl öffentliche als auch private Parkmöglichkeiten zur Verfügung. Diese Lage bietet ideale Voraussetzungen für Einzelhandel, Büros oder Dienstleistungsunternehmen.
Bus 1 km
Mit dem Laden der Umgebungskarte akzeptieren Sie die Datenschutzerklärung von Google.
Schlossplatz 6, 18246 Bützow, Deutschland (Größere Karte ansehen)
© ImmoFair Rostock GmbH 2024 I Eine MaklerWebseite der Invate Media