
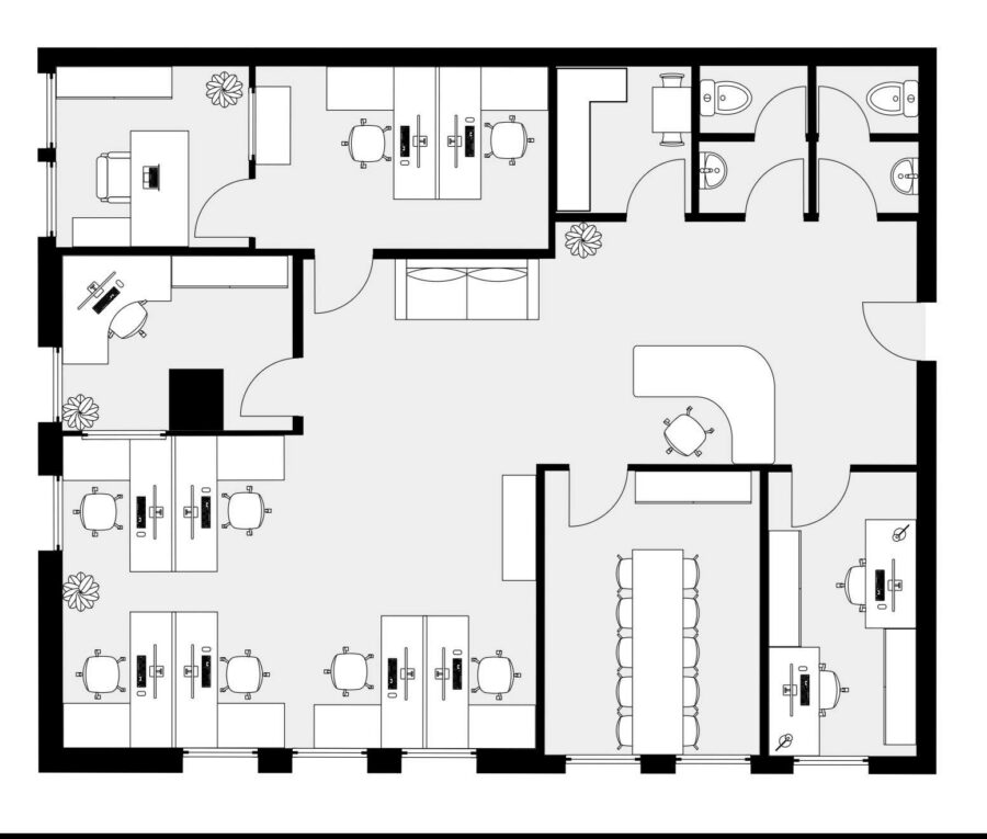
Hier angeboten wird eine zentralgelegene Gewerbeeinheit mit 107,00 m² im 1.OG, die sich flexibel nutzen lässt.
Die Fläche verügt über insgesamt 5 Büroräumen, einen großzügigen offenen Arbeitsbereich sowie einen geräumigen Eingangsbereich, der sich ideal für den Empfang von Kunden oder Patienten eignet.
Ergänzend befindet sich eine Teeküche und getrennte Damen- und Herren-WC´s in der Einheit.
Dank der Süd-Ost-Ausrichtung zeigen sich die Räumlichkeiten hell und freundlich, wodurch eine angenehme Arbeitsatmosphäre geschaffen wird.
Aktuell ist die Einheit mit einem pflegeleichten PVC-Boden und einer DV-Verkabekung ausgestattet.
Außerdem können zusätzlich 3 Außenstellplätze angemietet werden.
Nach Mieterwunsch kann die Einheit individuell angepasst und auf die jeweiligen Anforderungen abgestimmt werden.
Dadurch eignet sich die Fläche ideal für unterschiedlichste gewerbliche Nutzungen, wie beispielsweise Büro, Praxis oder Dienstleistungsunternehmen.
Die Einheit ist ab sofort bezugsfrei, sodass ein Einzug kurzfristig und flexibel realisiert werden kann.
Nach erfolgter Kontaktaufnahme stellen wir Ihnen gerne weitere Unterlagen zur Verfügung und vereinbaren einen Besichtigungstermin.
Wir freuen uns auf Ihre Anfrage!
- ca. 107,00 m² Gewerbefläche
- 1.OG
- 5 Büroräume
- großzügiger offener Arbeitsbereich
- geräumiger Eingangs- / Empfangsbereich
- Teeküche vorhanden
- getrennte Damen- und Herren-WC´s
- helle Räumlichkeiten durch Süd-Ost-Ausrichtung
- vorhandene DV-Verkabelung
- pflegeleichter PVC-Bodenbelag
- 3 Außenstellplätze (je 50,00€)
- flexible Raumgestaltung nach Mieterwunsch möglich
- kurzfristig bezugsfrei
Der Makler-Vertrag mit uns und/oder unserem Beauftragten kommt durch schriftliche Vereinbarung oder durch die Inanspruchnahme unserer Maklertätigkeit auf der Basis des Objekt-Exposés und seiner Bedingungen zustande. Die Mietercourtage in Höhe von 3,57 Kaltmieten einschließlich gesetzlicher Mehrwertsteuer ist bei Vertragsabschluss verdient und fällig. Die Höhe der Bruttocourtage unterliegt einer Anpassung bei Steuersatzänderung.
Alle Angaben zum Objekt stammen vom Eigentümer. Für deren Richtigkeit können wir keine Gewähr übernehmen. Eine Zwischenvermietung behält sich der Auftraggeber / Verkäufer ausdrücklich vor.
Alle Preise ohne Angabe der gesetzlichen Mehrwertsteuer verstehen sich netto (zzgl. 19% gesetzl. MwSt.).
DSGVO:
Wir verweisen hiermit auf die Speicherung Ihrer Daten, sobald Sie uns eine Kontakt-Anfrage senden. Die Gegebenheiten des Datenschutzes können Sie unter folgendem Link nachlesen. https://www.immofair-rostock.de/datenschutz/
Die Daten werden nicht an Dritte weitergegeben und dienen lediglich der Kontaktaufnahme, um ggf. einen Besichtigungstermin zu vereinbaren.
Sollten Sie die Speicherung nicht wünschen, bitten wir um kurze Mitteilung, um diese zu löschen.
Die angebotene Gewerbefläche befindet sich in attraktiver Lage in der Budapester Straße 80a im beliebten Rostocker Stadtteil Kröpeliner-Tor-Vorstadt (KTV). Die KTV zählt zu den lebendigsten und gefragtesten Stadtteilen der Hansestadt und zeichnet sich durch eine hohe Frequenz, eine gewachsene Infrastruktur sowie eine sehr gute Erreichbarkeit aus.
Die unmittelbare Umgebung ist geprägt von einer Mischung aus Wohn- und Gewerbenutzung. Zahlreiche Einzelhandelsgeschäfte, gastronomische Einrichtungen, Arztpraxen sowie Dienstleistungsunternehmen sorgen für ein belebtes Umfeld und bieten ideale Voraussetzungen für gewerbliche Nutzungen.
Die Anbindung an den öffentlichen Personennahverkehr ist sehr gut. Straßenbahn- und Bushaltestellen befinden sich in fußläufiger Entfernung und gewährleisten eine schnelle Verbindung in die Rostocker Innenstadt sowie zum Hauptbahnhof. Auch die Erreichbarkeit für den Individualverkehr ist durch die gute Anbindung an das überregionale Straßennetz gewährleistet.
Durch die zentrale Lage in einem etablierten Stadtteil mit hoher Aufenthaltsqualität und guter Sichtbarkeit bietet der Standort optimale Bedingungen für eine nachhaltige gewerbliche Nutzung.
Flughafen 37 km | Fernbahnhof 9 km | Autobahn 9 km | Bus 4 km
Mit dem Laden der Umgebungskarte akzeptieren Sie die Datenschutzerklärung von Google.
Budapester Str. 80a, 18057 Rostock, Deutschland (Größere Karte ansehen)